分譲住宅
- 石川県
- 野々市市
| 詳細 | 野々市市横宮にて計画中の分譲Project 〇全額借入 〇金利0.35% 〇40年返済 〇頭金0円 〇ボーナス払い0円 〇諸経費別途 ◇ローン減税 ※対象者のみ |
||
|---|---|---|---|
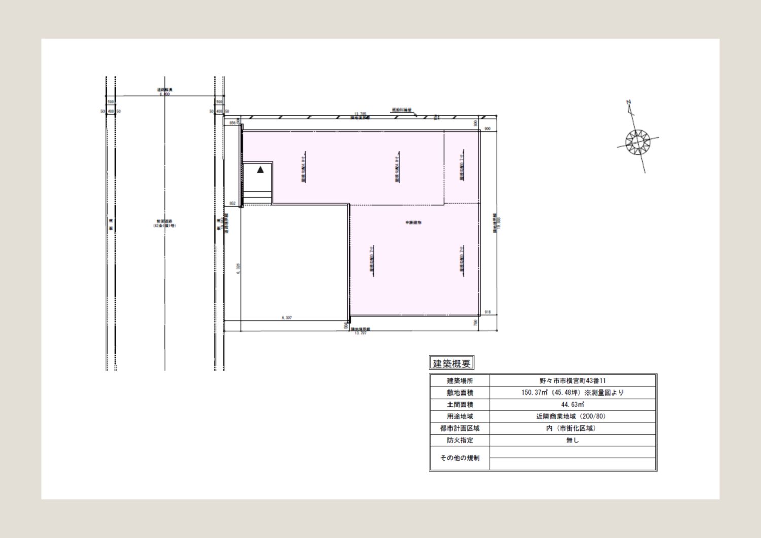
| 所在地 | 石川県野々市市横宮町43番11 | 交通 | 北鉄バス「西野々市」バス停 徒歩2分 北鉄石川線「野々市」駅 徒歩10分 |
| 小学校 | 野々市市立館野小学校 | 中学校 | 野々市市立布水中学校 |
| POINT | 陽の光がたっぷり差し込むリビングと勾配天井で、コンパクトながら開放感のある空間に。 ”心地よいサイズ感”の平屋をご提案。 |
||
-
間取り
- 3LDK
-
建ぺい率
- 80%
-
容積率
- 200%
-
私道負担
- なし
-
地目
- 宅地
-
現状
- 建築中
-
飲料水
- 公営水道
-
排水
- 公共下水
-
土地権
- 所有権
-
用途地域
- 近隣商業地域
-
都市計画区域・その他
- 市街化区域
-
防火指定
- なし
-
開発許可番号
- 第ERI-25022223号
-
引き渡し
- 相談
-
取引形態
- 売主
LAYOUT
間取り画像
野々市市横宮にて新しい分譲住宅を計画中!
幅広い世代から大人気の平屋です✨
計画の進捗状況はブログにて更新しております✊
▽▶画像をクリックしてご覧いただけます◀▽
詳細は金沢店までお問合せ下さい✉

ACCESS
周辺情報
野々市市中心部で徒歩圏内に商業施設が充実しております!




